板状ワークの洗浄に!水道水だけでも汚れがキレイに落ちる!
油、指紋、汚れなど、ワークの両面を一度に洗浄!手作業の手間を一気に解決します!




シートメタル用洗浄機 MW-800 について
板金ワークに付着した油分や汚れ、指紋、粉塵、切子等の異物などを市水(水道水)とブラシで洗い流し除去する洗浄機になります。
予備洗浄にてシート状の油分や異物を両面洗浄し、次工程の仕上げ洗浄でさらに両面を洗い上げます。
最終工程の乾燥・水切り装置で水分を完全に除去、乾燥。汚れていたワークが綺麗な姿で搬出されます。
シートメタル用洗浄機 MW-800のポイント
●市水(水道水)でも洗浄することができます。
●1回の加工で両面を洗浄することができます。
●水蒸気が漏れ出ないよう工夫されています。
●鉄、SUS、アルミ、銅、真鍮・亜鉛メッキ鋼板など様々な材質に対応。
●タッチパネルで簡単操作
●自社設計、自社製造。メイドインジャパンの洗浄機です。
アルカリ溶材では洗浄NGだったワークも洗浄できます
アルミ・銅・真鍮・亜鉛メッキ鋼板などはアルカリ溶材で洗浄をすると化学反応を起こし表面が変色・腐食します。
MW-800は市水(中性)での洗浄なのでアルカリ洗浄では洗浄NGだったワークも表面を侵さずに洗浄可能です。

性能諸元
| 形式 | MW-800 |
| 適用ワーク | 鉄・SUS・銅・真鍮・メッキ鋼板等 |
| 適用板厚 | 0.5~4㎜厚 |
| 洗浄液 | 水道水(※) |
| 電源 | 3相200Ⅴ 50Hz /60Hz |
| 排気 | ミストコレクター(付属) |
| 搬送速度 | 0.5~2.0m/min |
主な仕様
| 適用ワーク | W800mm × L150~1000mm、板厚t=0.5~4mm *板状ワーク、シートメタル材限定、立体的な形状はご利用いただけません。 |
| 洗浄液他 | 市水(水道水)に標準対応 防錆剤、アルカリ電解水・洗浄剤にも対応できます。 *有機溶剤、炭化水素系の洗浄液は非対応 |
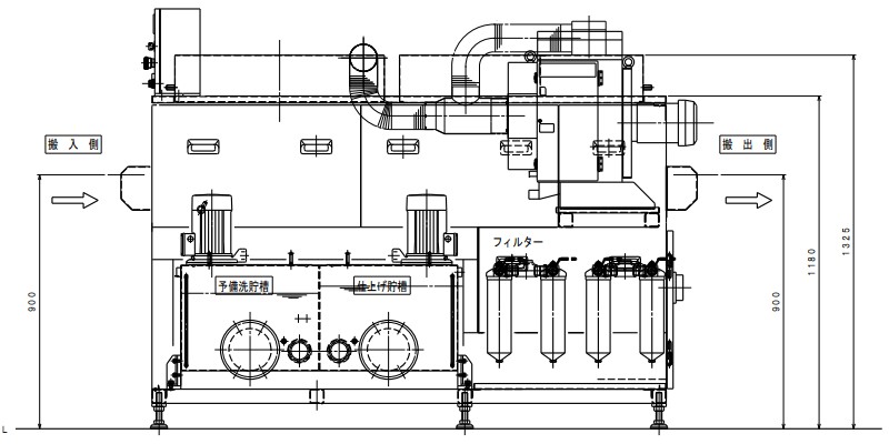
寸法図



機能紹介
エアナイフ
強力な空気でシート上の水分を除去します。水分のない綺麗な状態の製品を提供します。

オイルスキマー
回収水の中に残留した油分を取り除くための装置です。

濾過フィルター
洗浄液の汚れを取り除くフィルターです。定期的な交換が必要になります。

ミストコレクター
水蒸気を回収。フィルターレスなのでお手入れの必要がありません

- Newer: 製品名変更のお知らせ
- Older: 中古集塵機情報ページを開設しました!






